HOME
施工実績
新築
リフォーム
造作
広報資料
建築プラン一例
広瀬建築について
ひととき
お問い合わせ
HOME
施工実績
新築
リフォーム
造作
広報資料
建築プラン一例
広瀬建築について
ひととき
お問い合わせ
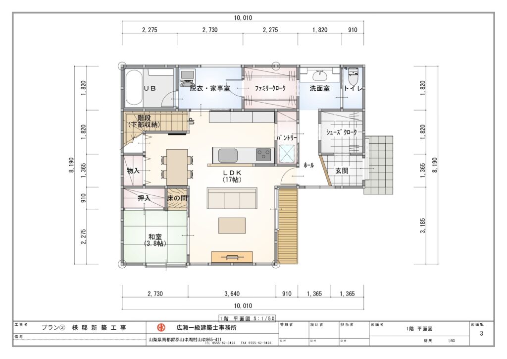
プラン②
2:13 PM
2階建て延床面積35坪。(1階21.25坪・2階13.75坪・リビング上部吹抜2坪)
税込3,200万円~3,400万円
ホーム
メニュー
HOME
施工実績
新築
リフォーム
造作
広報資料
建築プラン一例
広瀬建築について
ひととき
お問い合わせ
検索
タイトルとURLをコピーしました