HOME
施工実績
新築
リフォーム
造作
広報資料
建築プラン一例
ひととき
会社概要
お問い合わせ
HOME
施工実績
新築
リフォーム
造作
広報資料
建築プラン一例
ひととき
会社概要
お問い合わせ
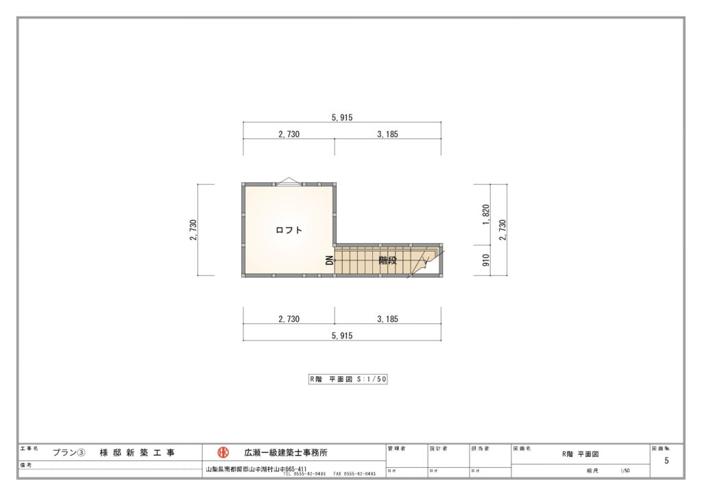
プラン③
2:14 PM
2階建て延床面積30.25坪。(1階17.5坪・2階12.75坪・ロフト3.125坪)
税込2,850万円~3,050万円
ホーム
メニュー
HOME
施工実績
新築
リフォーム
造作
広報資料
建築プラン一例
ひととき
会社概要
お問い合わせ
検索
タイトルとURLをコピーしました